Project Area – 1000 m²
Project Year – 2025
Location – Fethiye / Muğla
Design – Do Studio
Located high in the mountains of Fethiye, the pearl of the Aegean, Villa Sky truly lives up to its name, a home above the clouds, where nature and design meet in perfect harmony. Every detail of this unique summer house has been carefully considered. From its architectural design to construction and furniture, Do Architecture has realized the project entirely in-house.




The solid stone structure enhances the natural coolness of the highlands, while modern architectural lines bring serenity and balance to the space. Combining natural stone, wood, and glass, the villa stands as a timeless Aegean home, where traditional materials meets modernity in its purest form.




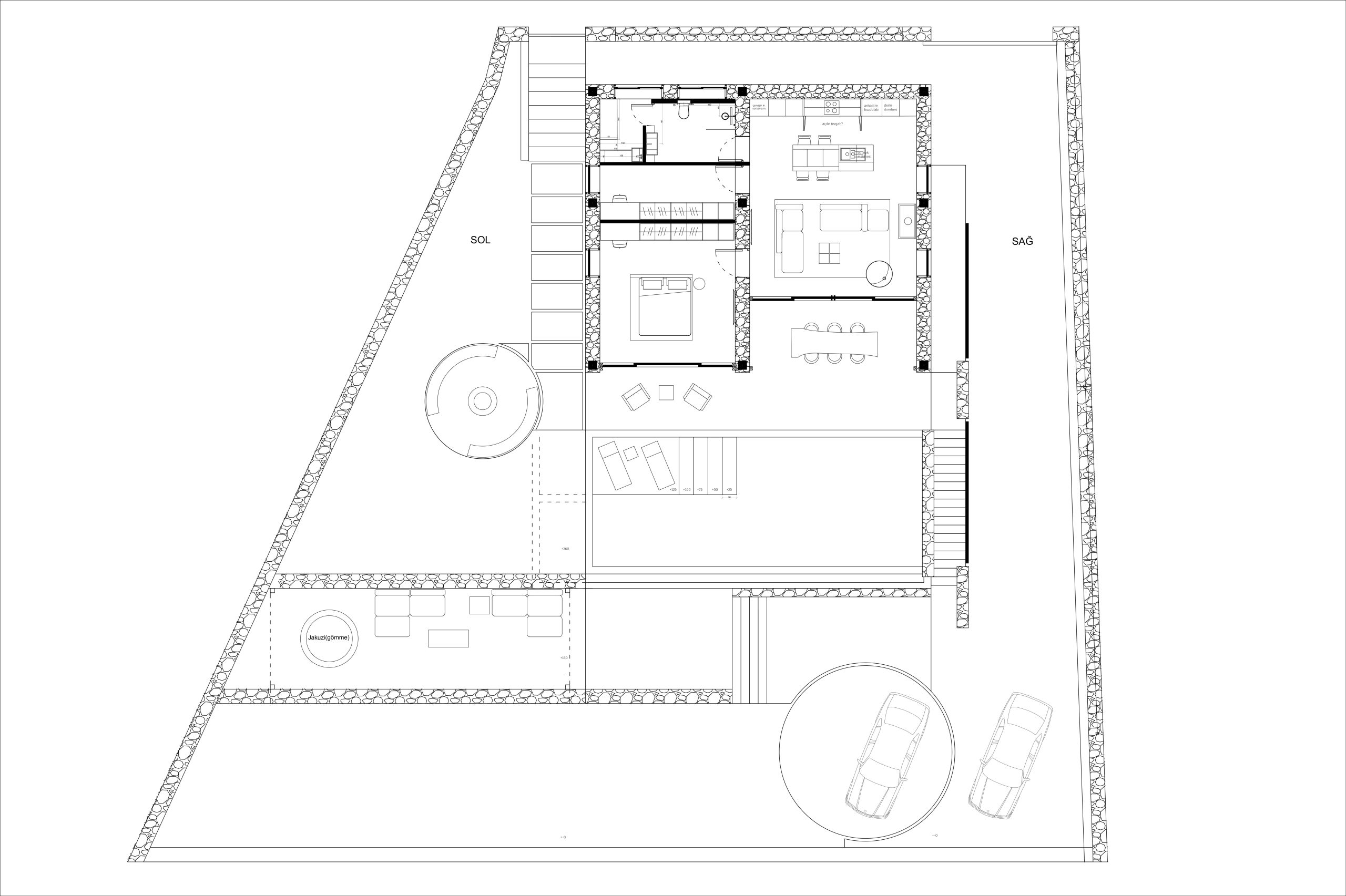
A fluid connection was established between the interior and exterior spaces, aiming to let the breathtaking view above the clouds gently flow into daily life, blurring the boundaries between nature and living. Material selections were carefully harmonized with the surrounding landscape, creating a seamless dialogue between architecture, environment, and atmosphere.


The mezzanine was designed as a youth bedroom, adding a sense of vertical spaciousness to the interior. The lower ceiling height in the sleeping area created a calm and serene atmosphere, harmonizing naturally with the overall space.



In the bathroom and turkish bath, bespoke travertine washbasins, basins, and central stones were crafted using distinctive materials native to the Aegean region, preserving the villa’s natural character. Complemented by colored lighting options, the space offers a romantic and softly lit ambiance.



At the end of the year-long design and construction process, it was ready for the summer of 2025.













